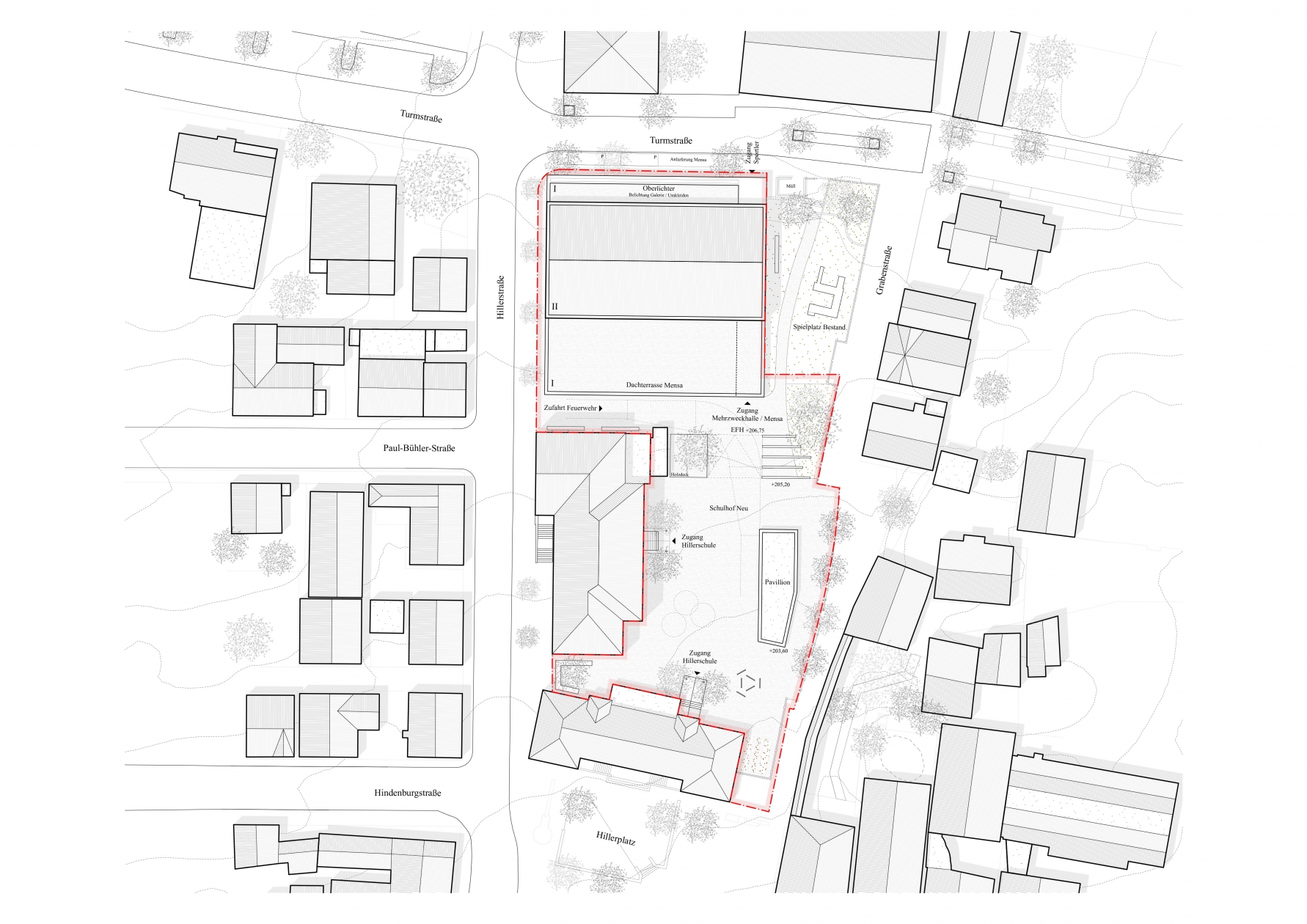
ERWEITERUNG HILLERSCHULE
Kayser Architekten gewinnen den 3. Preis beim Realisierungswettbewerb für die Erweiterung des Schulcampus Hillerschule in Bietigheim-Bissingen. Neben der Zweifeldhalle mit Mehrzwecknutzung in den unteren Geschossen entstehen im Obergeschoss Flächen für die Schulmensa sowie den Ganztagesbereich der Hillerschule mit vorgelagerter Dachterrasse.
- Ort: Bietigheim
- Bauherrschaft: Stadt Bietigheim-Bissingen
- Wettbewerb: 3. Preis 2016
- Nutzfläche: 1.775 qm
Geschossfläche: 2.975 qm
Kubatur: 14.565 cbm
Landschaftsarchitektur: LA Stauch - Rudersberg
Statik: IBK Statik Team - Aalen
Visualisierung: Reinraum GmbH - Stuttgart
In Kooperation mit Manuel Du
















